Luftaufnahme eines großen Industrie- und Logistikkomplexes mit mehreren hellen, rechteckigen Hallendächern, Laderampen und abgestellten Lkw, umgeben von landwirtschaftlichen Feldern, Waldflächen und einem kleinen Wohn- und Gewerbegebiet.

Wirtschaftsstandort Wiefelstede

Durch die Autobahnstrecken Oldenburg-Wilhelmshaven und Oldenburg-Leer (A 28 und A 29) gewann die Gemeinde Wiefelstede in den vergangenen Jahren im gewerblichen Bereich auch überörtlich an Bedeutung. In unmittelbarer Nähe beider Autobahnstrecken entstehen – vermarktet durch die Gemeinde – die beiden Gewerbegebiete Leuchtenburg und Westerholtsfelde. Daneben ergaben sich aber auch in den Hauptorten der Gemeinde, also in Wiefelstede und Metjendorf, erfreuliche gewerbliche Entwicklungen mit örtlichen Arbeitsplatzangeboten.

Es gibt in der Gemeinde so gut wie alle Branchen – als Hauptstandbein gilt jedoch nach wie vor das vielfältige Handwerk.

Für einen gesunden Wirtschaftsstandort spielt auch das weitere Umfeld eine bedeutende Rolle. Private und öffentliche Infrastruktur sind an die Anforderungen und Möglichkeiten angepasst. So lässt es sich in Wiefelstede gut wohnen.

Die Gemeinde Wiefelstede möchte den Wirtschaftsstandort sichern und weiter ausbauen.

Gerne steht die Gemeindeverwaltung für weitere Auskünfte zur Verfügung.

Im Rahmen der allgemeinen Wirtschaftsförderung der Gemeinde werden die Steuerhebesätze ausdrücklich niedrig gehalten. 


Weitere Informationen zum Standort (Zahlen, Daten & Fakten) erhalten Sie hier.

Übersicht der Gewerbeflächen

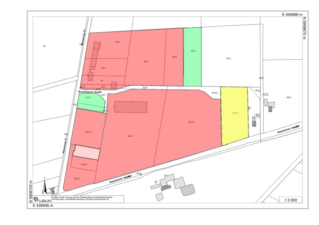
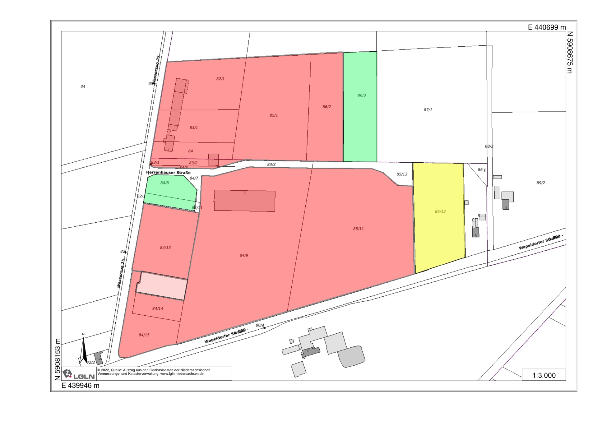
Industrie- und Gewerbegebiet im Norden der Gemeinde Wiefelstede in unmittelbarer Nähe der A 29 (Abfahrt Jaderberg). 

Die freie Fläche ist gelb markiert.
Sie hat eine Größe von 11.603 m².

Ansprechpartner ist Herr Bernd Quathamer (Tel. 04402/965-168).

Standortsuche mit KomSIS

Suchen Sie einen neuen Standort für Ihr Unternehmen? Benötigen Sie ein unbebautes Gewerbegrundstück in einem Gewerbepark oder Industriegebiet? Oder suchen Sie eine Gewerbeimmobilie, vielleicht eine Produktions- oder Lagerhalle, eine Büro- oder Ladenfläche?

KomSIS.de bietet Ihnen eine schnelle Standortsuche über mehr als 1.000 Gewerbeflächen und Gewerbeimmobilien in Niedersachsen.

KomSIS.de ist ein Serviceangebot der Landkreise und kreisfreien Städte aus Niedersachsen für nationale und internationale Investoren und standortsuchende Unternehmen.